Exposición 3
Tema: "El proyecto arquitectónico"
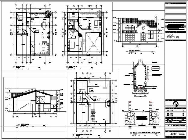
Un Proyecto arquitectónico es el conjunto de planos, dibujos, esquemas y textos explicativos utilizados para plasmar (en papel, digitalmente, en maqueta o por otros medios de representación) el diseño de una edificación, antes de ser construida.
Para la realización del proyecto de un inmueble se requieren de numerosos factores que resumidos finalmente son dos tipos de documentación escrita y grafica.
LA DOCUMENTACIÓN ESCRITA
Son todos los tramites y documentos requeridos por el organismo encargado de la planeación de su localidad (ayuntamiento) que por general son: escrituras del predio, comprobantes de pago de catastro del año en curso, pago del permiso para construcción, planos firmados por la firma de arquitectos de la localidad, pago del seguro, etc.
LA DOCUMENTACIÓN GRÁFICA
Es decir los planos los cuales son indispensables para llevar acabo la construcción de un edificio, que tenga una buena distribuccion y excelente funcionalidad, debemos señalar una diferencia existente en los proyectos, determinada por los distintos objetivos que deben cumplir, uno es el proyecto básico y el otro es el proyecto de ejecución.
EL PROYECTO BÁSICO
La misión de este es informar a los organismos competentes de la administración que deben entender acerca de la concesión de la licencia de obras, en este proyecto solo se deben respetar las normas establecidas por el organismo competente de la localidad
EL PROYECTO DE EJECUCIÓN
la misión de este es poder llevar acabo en su integridad la construcción del edificio, casa o inmueble.
Acontinuacion pasomos a enumerar los planos que deben figurar en un proyecto.
1) Plano de situación y emplazamiento
2) Plano de cimientos y saneamiento
3) Plano de cubierta o de conjunto
4) Planos de de planta (distribución)
5) Planos de planta (instalaciones)
6) Planos de planta (estructurales)
7) Planos de alzados o fachadas
8) Planos de secciones o cortes
9) Planos de detalles
10) Planos de carpintería
11) Planos complementarios
Los Diez primeros tipos de planos enumerados componen el proyecto de ejecución, mientras que el proyecto básico está compuesto solamente por los planos nº 1, 3, 4, 7, 8, por lo general pero en cada localidad los organismos competentes solicitan los que ellos necesitan. El plano señalado con el nº 11 tiene carácter opcional.
..
"El trabajo realizado con esfuerzo, dedicación y amor solo dará éxito como consecuencia"
miércoles, 31 de agosto de 2011
Bitácora No. 10 (22-Agosto-2011) López Olvera Tadeo Antonio. 5IV05
TRABAJO EN AUTOCAD
9:00-20:00 Hora no presencial =)
20:00-20:30 -Proporción de copias para trabajo en software Autocad:
DESCRIPCIÓN:
Eran 2 ejercicios el A era para los numeros pares
y el B era para los numeros de maquina non
En mi caso: máquina par , ejercicio A
20:30-21:30
Se nos reviso el croquis de nuestra casa con respecto a nuestro reporte fotografico antes realizado y el maetro nos fue dando algunas observaciones que le teniamos que realizar al croquis.
21:00-22:00
Se trabajo en las copias que se nos dieron de los planos arquitectonicos.
Bitácora No. 9 (18-Agosto-2011) López Olvera Tadeo Antonio. 5IV05
Exposición No. 1
Tema: "TOPOGRAFÍA"
Concepto:
La topografía es la ciencia que estudia los procedimientos
que tienen por objeto la representación gráfica de la superficie
de la tierra con sus formas y detalles.
Ejemplo de utilización de la topografía:
- El mas común es en mapas,
Un poco de su historia
Se cree que surgio en Egipto y aunque no ciertamente como ciencia, su aplicacion
fue concreta.
Las medidas utilizadas en Egipto para la medición de terrenos fueron:
-el delo
-la palma
-las 2 palmas
... Y en la ACTUALIDAD ????
En la actualidad la topografía es una parte esencial para poder trabajar un proyecto arquitectónico, ya que nos permite evaluar a primera instancia nuestro terreno.
ESTO NOS CONLLEVA A UN PROCESO ??
Como toda ciencia, la topografía nos conlleva a un proceso
- Llevar el terreno al gabinete (planos)
- Llevar al gabinete al terreno
- Toma de datos
- Estación total
- Representación gráfica del terreno
- Replanteo (para el proyecto)
- Ejes horizontales (verticales, cotas, rotación)
------------------------------------------------------------------------------------------------------------
Exposición No. 2
Tema: MECÁNICA DE SUELOS>>
Tema: "TOPOGRAFÍA"
Concepto:
La topografía es la ciencia que estudia los procedimientos
que tienen por objeto la representación gráfica de la superficie
de la tierra con sus formas y detalles.
Ejemplo de utilización de la topografía:
- El mas común es en mapas,
Un poco de su historia
Se cree que surgio en Egipto y aunque no ciertamente como ciencia, su aplicacion
fue concreta.
Las medidas utilizadas en Egipto para la medición de terrenos fueron:
-el delo
-la palma
-las 2 palmas
... Y en la ACTUALIDAD ????
En la actualidad la topografía es una parte esencial para poder trabajar un proyecto arquitectónico, ya que nos permite evaluar a primera instancia nuestro terreno.
ESTO NOS CONLLEVA A UN PROCESO ??
Como toda ciencia, la topografía nos conlleva a un proceso
- Llevar el terreno al gabinete (planos)
- Llevar al gabinete al terreno
- Toma de datos
- Estación total
- Representación gráfica del terreno
- Replanteo (para el proyecto)
- Ejes horizontales (verticales, cotas, rotación)
------------------------------------------------------------------------------------------------------------
Exposición No. 2
Tema: MECÁNICA DE SUELOS>>
La Mecánica de Suelos estudia el comportamiento del suelo para ser usado como material de construcción o como base de sustentación de las obras de ingeniería.
.. pero en verdad importa el suelo ??
La importancia de los estudios de la mecánica de suelos radica en el hecho de que si se sobrepasan los límites de la capacidad resistente del suelo o si, aún sin llegar a ellos, las deformaciones son considerables, se pueden producir esfuerzos secundarios en los miembros estructurales, quizás no tomados en consideración en el diseño, produciendo a su vez deformaciones importantes, fisuras, grietas, alabeo o desplomos que pueden producir, en casos extremos, el colapso de la obra o su inutilización y abandono.
La Mecánica de Suelos se interesa por la estabilidad del suelo, por su deformación y por el flujo de agua, hacia su interior, hacia el exterior y a través de su masa, tomando en cuenta que resulte económicamente factible usarlo como material de construcción.
Aplicaciones por un ingeniero:
A un ingeniero le interesa identificar y determinar la conveniencia o no de usar el suelo como material para construir rellenos en caminos, canales de conducción y distribución de los sistemas de riego, obras hidráulicas, entre otros.
Para esto es necesario obtener muestras representativas del suelo que se someten a pruebas de laboratorio, tomando en cuenta que el muestreo y los ensayos se realizan necesariamente sobre pequeñas muestras de población, es necesario emplear algún método estadístico para estimar la viabilidad técnica de los resultados.
El ingeniero pronosticará las características de carga-deformación de rellenos naturales o compactados, que soportan cualquier construcción o como estructura de suelo.
lunes, 29 de agosto de 2011
Bitácora No. 7 (15-Agosto-2011) López Olvera Tadeo Antonio. GRUPO: 5IV05
TRABAJO EN AUTO-CAD EN 3 DIMENSIONES
En la clase se dio la introducción del trabajo en autocad en 3d, previamente se trabajo en el proyecto de la realización del plano de una caseta de vigilancia ( ver en bitácoras anteriores), por lo que fue apropiado iniciar con el curso de 3d aplicandolo al plano de la caseta, posteriormente se trabajo de la siguiente manera:
Se explicaron los conceptos siguientes:
AutoCAD en la actualidad, es uno de los programas más utilizados por profesionales de todas las ramas de la arquitectura, ingeniería y ciencias para el diseño de objetos, dibujos y planos.
En este curso de Dibujo de Proyectos Ejecutivos, veremos las instrucciones y la funcionalidad básicas para conseguir crear y trabajar con objetos en 3D.
En la clase se dio la introducción del trabajo en autocad en 3d, previamente se trabajo en el proyecto de la realización del plano de una caseta de vigilancia ( ver en bitácoras anteriores), por lo que fue apropiado iniciar con el curso de 3d aplicandolo al plano de la caseta, posteriormente se trabajo de la siguiente manera:
Se explicaron los conceptos siguientes:
-Mayas- wareframe ( maya de alambre )
-Extrude (solo hace un reflejo y genera volúmenes)
-Podemos combinar dos comandos para hacer elementos solidos BOUNDARY-EXTRUDE
-Solidos: asi como son Cubos, cilindros, pirámides, etc..
Para comenzar a trabajar en 3 debemos cambiar de plano espacio de trabajo con el comando “ddvpoint” .
Para comenzar a construir nuestros muros procedemos de la siguiente forma
Menu principal { draw { modeling { box
a) Para un cubo se deja SE UTILIZA EL MISMO COMANDO PERO TECLAMOS "C" de cube, y solo se da un valor para todos los lados de las caras del mismo.
De ser necesario para ajustar los muros, a los espacios aplicar "ROTATE" a 90 °
De ser necesario para ajustar los muros, a los espacios aplicar "ROTATE" a 90 °
Para modificar las cajas ( MUROS ) ,
PARA APLICAR HUECOS DE VENTANAS:
USAMOS EL COMANDO SUBSTRACK
También podemos visualizar el o los avances de nuestro proyecto mediante el estilo visual "SHADE".
Para verificar si el objeto a quedado pre visualizamos con el comando "SHADE"
Cabe mencionar que la utilizacion de este estilo visual genera bastante información, por lo que no es recomendable guardar un proyecto finalizado en este visual style
¿cómo desactivamos el shade???
View {visual style { 2d wire frame.
lunes, 22 de agosto de 2011
Bitácora No. 6 (11-Agosto-2011) López Olvera Tadeo Antonio. GRUPO: 5IV05
TRABAJO EN AUTOCAD
consistente en:
- Fachada
- Vista de planta
- Aplicación de bloques (puertas, ventanas, boyas)
- Acotación del plano.
y entrega de croquizado del Salón S-2.
domingo, 21 de agosto de 2011
Bitácora No. 5 (9-Agosto-2011) López Olvera Tadeo Antonio. GRUPO: 5IV05
El CROQUIS
El croquis es un tipo de dibujo rápido y sencillo. Se realiza a mano alzada, sin uso de instrumental, generalmente empleando lápiz. Se utiliza para representar un modelo o una idea. Pueden utilizarse todas las técnicas del dibujo técnico pero trasladadas a
dibujo a mano alzada.
El croquis es una técnica de dibujo que representa un esbozo de la imagen. Se realiza a mano alzada y constituye un modelo previo a la ejecución del dibujo definitivo, o de una obra de arte.
Es un boceto que permite dar un lineamiento general de lo que se desea representar, pero sin entrar en detalles, sino que se dibuja con pocos trazos. Este dibujo se realiza a mano alzada, es solamente lineal y no lleva coloreado, nos representa el esquema elemental del objeto, idea o concepto a representar.
Esta técnica se utiliza principalmente en arquitectura, para representar una idea o proyecto que todavía está elaborándose. También se emplea en el diseño industrial, para representar un modelo o prototipo.
Otros usos para este tipo de dibujo son los apuntes del natural. Se emplea para realizar dibujos extraídos de la naturaleza, donde no se requiere una gran precisión ni detalles, sino trazos genéricos que representen el todo.
Elementos de el croquis:
El croquis es un medio rápido y eficaz de representación gráfica, pero a la vez es claro y completo.
En general se emplea como paso previo a otras etapas del dibujo y del diseño, principalmente en el diseño industrial o arquitectónico.
La técnica de el croquis
Para realizarlo pueden emplearse todos los sistemas de representación del dibujo técnico, pero sin instrumental de dibujo. El empleo de dichas técnicas simplifica el trazado y facilita su comprensión.
Si bien no se dibujan a escala, las proporciones deben ser igualmente respetadas, para favorecer la comprensión y la identificación con el modelo que representan.
Para la medición de los elementos constitutivos de un croquis, se emplea el ojo humano. Para el traslado de las medidas al papel, se emplea el propio lápiz como parámetro.
Por lo general se realizan a lápiz, pero también pueden emplearse otros materiales como la carbonilla, el pastel, el marcador. No se colorea y el soporte ideal es el papel.
TRABAJO EN CLASE:
Toma de medidas de salón de clases (S-2) , mediante el uso del flexómetro, para realizar croquizado del mismo ( reiterando el concepto de croquis).
PROCESO DE CROQUIZADO:
- Toma de medidas
- Dibujo a mano en alzado del área a representar (salón de clases).
- Representación de Medidas ( elección de acotación ya sea en m o cm, segun sea adecuado ).
Bitácora No. 4 (8-Agosto-2011) López Olvera Tadeo Antonio. GRUPO: 5IV05
AUTOCAD
MANEJO DE BLOQUES
PUERTAS Y VENTANAS
MANEJO DE BLOQUES
Los bloques de AutoCAD son necesarios para agilizar y mecanizar el desarrollo de proyectos y trabajos técnicos de arquitectura, ingeniería y construcción, los bloques se agrupan en las siguientes temáticas:
DETALLES CONSTRUCTIVOS
Los detalles constructivos se componen de los siguientes temas: aislamientos, barandillas y cierres, carpintería de madera y metálica, cpi, cubiertas, detalles de cerramiento, escaleras, estructuras de hormigón, madera y metálicas, materiales de construcción, prefabricación, rehabilitación, sección de fachadas y soleras
INSTALACIONES
Instalaciones está compuesta por: ascensores, calefacción, climatización, contra incendios, electricidad, fontanería, gases, motores, pararrayos, saneamiento, seguridad, telecomunicaciones, ventilación .
MUEBLES Y SANITARIOS
Mobiliario se compone de muebles de vivienda tales como: muebles de cocina, chimeneas, decoración, dormitorio, jardín, mesas, sala de juegos, salón y sanitarios, además de muebles de uso comercial e industrial como: bar, bodega, buffet, cocina, equipamiento industrial y médico, gimnasio, oficina, panificadora, peluquería, salón de belleza.
URBANISMO
Urbanismo está compuesta de: aparcamientos, deportes, detalles de obra civil, marcas viales, mobiliario urbano y piscina.
SEGURIDAD Y SALUD EN LA EDIFICACIÓN
Seguridad y salud contiene: acopios, andamios, apeos y encofrados, demoliciones, electricidad, escombros, protecciones colectivas y castas de obra
SEÑALES
Señales se compone de las diversas temáticas: contra incendios, flechas, información, niveles, nortes, peligro, prohibiciones, señales de tráfico, símbolos
TRANSPORTES
Transportes está compuesta de: aéreos, embarcaciones, industriales, militares y terrestres.
Puertas y ventanas está compuesta de puertas: alzados, cierres de seguridad, herrajes, manillas, marcos, planta y ventanas: alzados, planta y ventanas de cubierta.
PERSONAS Y ANIMALES (CONTORNOS Y SILUETAS)
Personas y animales incluye representaciones de contornos, deportistas, grupos, hombres, mujeres, niños, parejas, etc., y animales como aves, caballos, cabras, cerdos, conejos, etc.
VEGETACIÓN Y ÁRBOLES
Vegetación tiene bloques de árboles, arbustos, setos, macetas y rocas, en planta y alzado.
PRESENTACIONES
Presentaciones se componen de cajetines, cuadros, escalas gráficas, escudos y láminas
ACCESIBILIDAD
Accesibilidad incluye, alcances, ascensores, movilidad en la vivienda, escaleras, rampas, plataformas, etc
MAPAS Y CALLEJEROS
mapas y callejeros está compuesta por mapas de países de diversas partes del mundo y por callejeros de ciudades
EQUIPOS Y MAQUINARIA DE OBRAS
Equipos de obra incluye, buldócer, hormigonera, compactador, grúa, mini excavadoras, pala cargadora y mixta, retroexcavadora.
3 DIMENSIONES
3 dimensiones está compuesta por accesibilidad, accesorios y objetos, animales, cocina, columnas, decoración, deportes, equipamiento médico, escaleras, herramientas, incendios, informática, juegos, lámparas, lavadoras, mobiliario urbano, motores, muebles, personas, puertas y ventanas, sanitarios, señales, sonido, tejas, televisores, teléfonos, vegetación.
TRABAJO EN CLASE ( manejo de Bloques )
Boyas, Puertas, Ventanas. En vista de alzado
domingo, 7 de agosto de 2011
Bitácora No. 3 (4-Agosto-2011) López Olvera Tadeo Antonio. 5IV05
¿ Cómo se trabaja en Autocad?
Autocad es un programa que funciona por medio de coordenadas
para trabajar o dibujar en autocad se realiza por medio de comandos
Pasos para trabajar en autocad:
PROYECTO: CASETA DE VIGILANCIA
1.- Identificar que estamos o vamos a dibujar(elementos)
* muros, puertas, ventanas, losa, piso, banqueta, simbol, texto, muebles, cotas, boyas y ejes
2.- Crear layers
codigos de lineas (colores)
red- 0.15 mm
yellow- 0.30 mm
green- 0.35 mm
blue - 0.25 mm
cyan - 0.40 mm
b/n - 0.40 mm
magenta - 0.01
8 o 9 - 0.01
TIPOS DE LINEAS
Ejes Magenta, 8 o 9
Texto_ Verde
Muros_Cyan B ó N
Piso_Azul, AMARILLO, ROJO
El trabajo que se realizó, fue el proyecto de la Caseta de Vigilancia, con las especificaciones dadas
Trabajo en conjunto con:
Nolasco Medrano Juan Eduardo
Autocad es un programa que funciona por medio de coordenadas
para trabajar o dibujar en autocad se realiza por medio de comandos
Pasos para trabajar en autocad:
PROYECTO: CASETA DE VIGILANCIA
1.- Identificar que estamos o vamos a dibujar(elementos)
* muros, puertas, ventanas, losa, piso, banqueta, simbol, texto, muebles, cotas, boyas y ejes
2.- Crear layers
codigos de lineas (colores)
red- 0.15 mm
yellow- 0.30 mm
green- 0.35 mm
blue - 0.25 mm
cyan - 0.40 mm
b/n - 0.40 mm
magenta - 0.01
8 o 9 - 0.01
TIPOS DE LINEAS
Ejes Magenta, 8 o 9
Texto_ Verde
Muros_Cyan B ó N
Piso_Azul, AMARILLO, ROJO
El trabajo que se realizó, fue el proyecto de la Caseta de Vigilancia, con las especificaciones dadas
Trabajo en conjunto con:
Nolasco Medrano Juan Eduardo
Bitácora No. 2 (2-Agosto-2011) López Olvera Tadeo Antonio. 5IV05
" Proyecto Ejecutivo "
Un proyecto es algo que se va a a llevar a cabo, para cumplir una meta o satisfacer una necesidad. Para poder llevar a cabo un proyecto, el punto de partida es una IDEA, y Para hacer que una idea se convierta en un proyecto, se necesita de una metodología ( o una jerarquia de procesos) para poder lograrlo.
Hombre{ necesidades { "Habitar"
Ejemplo de un proyecto:
"Construcción de una Casa-Habitación"
Elementos necesarios para realizar dicho proyecto:
- Terreno. p
- Topografía
- Aplicación deMecánica de suelos (Nos ayuda a verificar las propiedades de resistencia del terreno para el proyecto arquitectónico a desarrollar).
-Aplicación de Espacios Arquitectónicos (Nos ayuda en la distribución de espacios).
- Proyectos Estructurales ( Nos ayuda a elaborar y saber como estará estructurada la construcción).
- Proyectos de Instalaciones :
*Sanitaria
*Hidráulica
*Especiales
-Algo muy importante que interviene en este proceso, es que después de satisfacer las "necesidades", es esencial tratar de adecuarse a los hábitos y lujos del cliente o usuario de la construcción.
-Proyectos de Acabados:
*Muros
*Tapicería
*Piso
*Losa
*Lámparas, etc
-Proyectos de Herrería:
* Ventanas
* Puertas, etc
-Proyectos de Carpintería:
* Muebles
* Ventanas
* Puertas
-Proyectos de Detalles:
* Exteriores.
En resumen:
Un proyecto ejecutivo es aquel conjunto de planos para la construcción de un inmueble, y nos va a satisfacer todo tipo de necesidades según el cliente.
Un proyecto es algo que se va a a llevar a cabo, para cumplir una meta o satisfacer una necesidad. Para poder llevar a cabo un proyecto, el punto de partida es una IDEA, y Para hacer que una idea se convierta en un proyecto, se necesita de una metodología ( o una jerarquia de procesos) para poder lograrlo.
Hombre{ necesidades { "Habitar"
Ejemplo de un proyecto:
"Construcción de una Casa-Habitación"
Elementos necesarios para realizar dicho proyecto:
- Terreno. p
- Topografía
- Aplicación deMecánica de suelos (Nos ayuda a verificar las propiedades de resistencia del terreno para el proyecto arquitectónico a desarrollar).
-Aplicación de Espacios Arquitectónicos (Nos ayuda en la distribución de espacios).
- Proyectos Estructurales ( Nos ayuda a elaborar y saber como estará estructurada la construcción).
- Proyectos de Instalaciones :
*Sanitaria
*Hidráulica
*Especiales
-Algo muy importante que interviene en este proceso, es que después de satisfacer las "necesidades", es esencial tratar de adecuarse a los hábitos y lujos del cliente o usuario de la construcción.
-Proyectos de Acabados:
*Muros
*Tapicería
*Piso
*Losa
*Lámparas, etc
-Proyectos de Herrería:
* Ventanas
* Puertas, etc
-Proyectos de Carpintería:
* Muebles
* Ventanas
* Puertas
-Proyectos de Detalles:
* Exteriores.
En resumen:
Un proyecto ejecutivo es aquel conjunto de planos para la construcción de un inmueble, y nos va a satisfacer todo tipo de necesidades según el cliente.
Bitácora No. 1 (1-Agosto-2011) López Olvera Tadeo Antonio. 5IV05
Proyectos Ejecutivos en la industria de la Construcción
En la primera sesión de la unidad de aprendizaje en cuestión, se realiza un examen diagnóstico en el software Auto Cad , consistente en el dibujo de una caseta de vigilancia, con medidas establecidas, la competencia a adquirir fue la demostración del manejo adecuado de comandos como:
-Layers
-Offsets
-Copy
-Circle
Se explicaron brevemente, las actividades, a realizar en el curso , y los conceptos que se manejaran a lo largo de este.
En la primera sesión de la unidad de aprendizaje en cuestión, se realiza un examen diagnóstico en el software Auto Cad , consistente en el dibujo de una caseta de vigilancia, con medidas establecidas, la competencia a adquirir fue la demostración del manejo adecuado de comandos como:
-Layers
-Offsets
-Copy
-Circle
Se explicaron brevemente, las actividades, a realizar en el curso , y los conceptos que se manejaran a lo largo de este.
Suscribirse a:
Comentarios (Atom)



