Se nos dio la oportunidad de plottear nuevamente por las personas que no habian plotteado la sesión anterior, la ventaja de los que plotearon el día martes es que el profesor tubo la oportunidad de corregir los errores posteriores a los planos definitivos.
Casi nadie había ploteado, por lo que fue una gran ayuda para todos.
..
"El trabajo realizado con esfuerzo, dedicación y amor solo dará éxito como consecuencia"
miércoles, 30 de noviembre de 2011
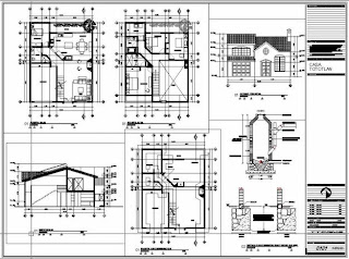
Bitácora No. 35(18-Octubre-2011) López Olvera Tadeo Antonio. 5IV05
Bitácora No. 34(17-Octubre-2011) López Olvera Tadeo Antonio. 5IV05
HORARIO: 7.00 - 10-00 PM
NO. DE MAQUINA: 15
El el profesor nos dio la indicación de que se iban a plotear los planos realizados,
se fue haciendo en orden y por numero de máquina.
Realmente aun no terminabamos nuestros planos, por lo que estabamos muy apurados, ya que casi nadie tenia sus planos listos y avanzaba rapido, era la penúltima clase para plotear y si no lo haciamos en tiempo y forma, ya no lo haríamos despues.
Se mencionó tambien que los siguientes planos a realizar seria el de INSTALACION HIDROSANITARIA.
NO. DE MAQUINA: 15
El el profesor nos dio la indicación de que se iban a plotear los planos realizados,
se fue haciendo en orden y por numero de máquina.
Realmente aun no terminabamos nuestros planos, por lo que estabamos muy apurados, ya que casi nadie tenia sus planos listos y avanzaba rapido, era la penúltima clase para plotear y si no lo haciamos en tiempo y forma, ya no lo haríamos despues.
Se mencionó tambien que los siguientes planos a realizar seria el de INSTALACION HIDROSANITARIA.
sábado, 15 de octubre de 2011
Bitácora No. 32(11-Octubre-2011) López Olvera Tadeo Antonio. 5IV05
No. de Máquina: 15
Horario: 3:00 - 4:00 pm
Ahora vamos con el PLANO DE FACHADA Y CORTES !!
Ya llevamos un pequeño avance del plano de
fachadas y cortes, necesitamos configurar layers
e insertar boyas, y algunos bloques.
Imagen de corte
Imagen de fachada y losa de azotea
Imagen de proyecto con pie de
plano
Se nos dio fecha de entrega de archivos, se nos aviso que no habria sesión el día jueves 13 de octubre.
Horario: 3:00 - 4:00 pm
Ahora vamos con el PLANO DE FACHADA Y CORTES !!
Ya llevamos un pequeño avance del plano de
fachadas y cortes, necesitamos configurar layers
e insertar boyas, y algunos bloques.
Imagen de corte
Imagen de fachada y losa de azotea
Imagen de proyecto con pie de
plano
Se nos dio fecha de entrega de archivos, se nos aviso que no habria sesión el día jueves 13 de octubre.
Bitácora No. 31 (10-Octubre-2011) López Olvera Tadeo Antonio. 5IV05
No. de Máquina: 15
Horario: 7.00 - 10.00 pm
Por fin... !!!!
Al fin terminamos correctamente ( o al menos eso creo ) nuestro
proyecto de plantas arquitectónicos,
realizamos las correcciones necesarias en:
.-BLOQUES
.-LAYERS
.-ESCALAS
.-PIE DE PLANO
.-NOTAS
.-TEXTO
.-ACOTACIONES
Y ahora nos dirigimos a plotear.
LES PRESENTO ALGUNAS IMAGENES DE NUESTRO PROYECTO:
Horario: 7.00 - 10.00 pm
Por fin... !!!!
Al fin terminamos correctamente ( o al menos eso creo ) nuestro
proyecto de plantas arquitectónicos,
realizamos las correcciones necesarias en:
.-BLOQUES
.-LAYERS
.-ESCALAS
.-PIE DE PLANO
.-NOTAS
.-TEXTO
.-ACOTACIONES
Y ahora nos dirigimos a plotear.
LES PRESENTO ALGUNAS IMAGENES DE NUESTRO PROYECTO:
Bitácora No. 30 (6-Octubre-2011) López Olvera Tadeo Antonio. 5IV05
No. de Máquina: 15
Horario: 5:00 - 7: 00 pm
Terminamos de corregir nuestro proyecto
arquitectónico y ahora nos dirigimos a
hacer nuestros planos de fachadas y
cortes.
Se nos indicaron los layers apropiados
para el mismo.
Enfrentamos algunas dificultades
con las alturas , ya que algunas no estaban especificadas.
Horario: 5:00 - 7: 00 pm
Terminamos de corregir nuestro proyecto
arquitectónico y ahora nos dirigimos a
cortes.
Se nos indicaron los layers apropiados
para el mismo.
Enfrentamos algunas dificultades
con las alturas , ya que algunas no estaban especificadas.
Bitácora No. 29 (4-Octubre-2011) López Olvera Tadeo Antonio. 5IV05
No. de Máquina: 15
Horario: 3.00 - 4.00 pm
Se enfocó toda nuestra atención a
corregir todos los detalles de
nuestros planos , errores de los
que nos percatamos con el
ploter de prueba.
Se nos indicó que los planos de cortes
y fachadas se entregarían electronicamente.
Horario: 3.00 - 4.00 pm
Se enfocó toda nuestra atención a
corregir todos los detalles de
nuestros planos , errores de los
que nos percatamos con el
ploter de prueba.
Se nos indicó que los planos de cortes
y fachadas se entregarían electronicamente.
Bitácora No. 28 (3-Octubre-2011) López Olvera Tadeo Antonio. 5IV05
No. de máquina: 15
Horario: 7.00 -10.00 pm
Para esta sesión se tenia previsto el
ploteo de prueba de nuestros planos
del proyecto arquitectónico.
Al parecer creíamos que nuestro proyecto
ya estaba bien,
sin embargo a la hora de conectar al ploter,
pudimos observar varios detalles.
Algunas fallas fueron, que nuestros planos no
tenían escala, para lo cual, el profesor nos
indico que esta se daría primeramente a las
líneas con el comando LT SCALE, Y al
plano en general modificando la escala de
VIEWPORT.
A la hora de ver la impresión nos dimos
cuenta que uno de nuestros automóviles
se distorsiono, por lo que habría que
reemplazarlo.
Corrección que se llevaría a cabo en
próximas sesiones.
Horario: 7.00 -10.00 pm
Para esta sesión se tenia previsto el
ploteo de prueba de nuestros planos
del proyecto arquitectónico.
Al parecer creíamos que nuestro proyecto
ya estaba bien,
sin embargo a la hora de conectar al ploter,
pudimos observar varios detalles.
Algunas fallas fueron, que nuestros planos no
tenían escala, para lo cual, el profesor nos
indico que esta se daría primeramente a las
líneas con el comando LT SCALE, Y al
plano en general modificando la escala de
VIEWPORT.
A la hora de ver la impresión nos dimos
cuenta que uno de nuestros automóviles
se distorsiono, por lo que habría que
reemplazarlo.
Corrección que se llevaría a cabo en
próximas sesiones.
Bitácora No. 27 (29-Septiembre-2011) López Olvera Tadeo Antonio. 5IV05
Máquina: 15
Horario: 5.00 - 7. 00 pm
Continuamos trabajando nuestro proyecto de plantas arquitectónicas,
ya se realizaron muchas correcciones , se insertaron los bloques
faltantes como:
- arboles
- automóviles
- corrección de bloques
- NPT
Horario: 5.00 - 7. 00 pm
Continuamos trabajando nuestro proyecto de plantas arquitectónicas,
ya se realizaron muchas correcciones , se insertaron los bloques
faltantes como:
- arboles
- automóviles
- corrección de bloques
- NPT
Se analizo meticulosamente
la planta alta, por la cuestión
de ashurados, rectificación de
correctas acotaciones y boyas.
Bitácora No. 26 (27-Septiembre-2011) López Olvera Tadeo Antonio. 5IV05
No. de Máquina: 15
Horario: 3:00 - 4:00 pm
Continuamos realizando nuestro proyecto...
Como en las anteriores sesiones se siguió trabajando en nuestro
proyecto de plantas arquitectónicos.
Aún nos hace falta realizar cosas como insertar:
-Automoviles
-NPT
-Algunos árboles
-Terminar pie de plano
(escala gráfica, la seccion de notas generales)
-Marcar bloques
y dar formatos correctos a nuestros layers.

De igual forma el profesor nos anticipó las fechas para
plotear nuestros proyectos, se indico que primero se haría un ploteo de prueba para corregir detalles,
por lo que debíamos apurarnos
y corregir lo antes posible los desperfectos que se iban encontrando
en el transcurso de las revisiones.
Horario: 3:00 - 4:00 pm
Continuamos realizando nuestro proyecto...
Como en las anteriores sesiones se siguió trabajando en nuestro
proyecto de plantas arquitectónicos.
Aún nos hace falta realizar cosas como insertar:
-Automoviles
-NPT
-Algunos árboles
-Terminar pie de plano
(escala gráfica, la seccion de notas generales)
-Marcar bloques
y dar formatos correctos a nuestros layers.
De igual forma el profesor nos anticipó las fechas para
plotear nuestros proyectos, se indico que primero se haría un ploteo de prueba para corregir detalles,
por lo que debíamos apurarnos
y corregir lo antes posible los desperfectos que se iban encontrando
en el transcurso de las revisiones.
Bitácora No. 25 (26-Septiembre-2011) López Olvera Tadeo Antonio. 5IV05
No. de Máquina: 15
Horario: 7:00 - 10: 00 pm
Durante las 3 horas de esta sesión se siguió
trabajando con nuestro proyecto arquitectónico.
Ya habíamos hecho nuestro pie de plano en
mantequilla, ahora teníamos que hacerlo en
Autocad.
El profesor ya nos había mostrado como hacer la
distribución de espacio en el mismo, por lo que
solo se siguieron indicaciones sobre medidas
para nuestro margen. Ocupación del layout
especial para margen y pie de plano, ese fue
nuestro enfoque esta sesión, además
del pequeño avance en el dibujo de las plantas.
Imagen de Comienzo de pie de plano:
Horario: 7:00 - 10: 00 pm
Durante las 3 horas de esta sesión se siguió
trabajando con nuestro proyecto arquitectónico.
Ya habíamos hecho nuestro pie de plano en
mantequilla, ahora teníamos que hacerlo en
Autocad.
El profesor ya nos había mostrado como hacer la
distribución de espacio en el mismo, por lo que
solo se siguieron indicaciones sobre medidas
para nuestro margen. Ocupación del layout
especial para margen y pie de plano, ese fue
nuestro enfoque esta sesión, además
del pequeño avance en el dibujo de las plantas.
Imagen de Comienzo de pie de plano:
Bitácora No. 24 (22-Septiembre-2011) López Olvera Tadeo Antonio. 5IV05
No. de Máquina: 15
Horario: 5:00 - 7:00
Se siguió dedicando tiempo a las exposiciones finales de los equipos faltantes.
EXPOSICIÓN SOBRE EL TEMA:
" CARPINTERÍA"
Definición de Concepto:
-Carpintería es el nombre del oficio y del taller o lugar donde se trabaja la madera y sus derivados.
La industria de la carpintería produce muebles y materiales
de construcción diversos, desde suelos de contrachapado hasta
tejamaniles. En este artículo se analizan las principales fases
de transformación de la madera para fabricar productos de este
material, que son: el labrado a máquina de la madera o de
paneles manufacturados, el montaje de las piezas mecanizadas y el acabado superficial (p. ej., pintura, tinte, lacado,
chapado, etc.).
Se nos explicó que existe gran variedad de maderas y cada una es apropiada para algún tipo de acabado o mueble.
ALGUNOS EJEMPLOS DE MADERAS SON:
.pino
-roble
-cerezo
-caoba
-ébano
-balsa
-oyamel
-cedro
entre muchas mas (etc...)
Todas las maderas se dividen en 3:
- BLANDA
- DURA
- MEDIANA
Según su dureza se emplearan para cierto objetivo
La carpinteria es realmente esencial en la arquitectura para el desarrollo de acabados en un proyecto de algun inmueble.
claros ejemplos en los:
-CROQUI DE MOSAICO,
-PLANO DE CARPINTERIA (incluido entre los planos de un proyecto)
-LA REPRESENTACIÓN DEL USO DE ESTE MATERIAL EN ACABADOS Y DETALLES DE CONSTRUCCIÓN COMO MUROS, VENTANAS, PUERTAS, TECHOS , ENTRE OTROS.
-----------------------------------------------------------------------------------------------------------------------------------
EXPOSICIÓN:
TEMA: "ESCALERAS"
Las escaleras son mas que fundamentales para un proyecto ejecutivo, estas son definidas como el medio por el cual se nos permite ingresar de un nivel a otro en un inmueble.
Dicho medio esta formado por una estructura con forma pendiente y apta para subir y bajar sin dificultad.
PARTES DE UNA ESCALERA:
NOTAS:
Si un segmento de escalones sobrepasa de 12 escalones sin descanso, deja de ser considerado como escalera y se llamará ESCALINATA.
El voladizo no es una parte fundamental en una escalera, por lo que el diseño de alguna de estas puede no integrarlos.
La huella debe tener una longitud no menor de 60 cms.
El descanso como tal cumple la función de brindar descanzo
a las rodillas por los escalones subidos anteriormente.
Si la escalera contiene contrahuella, esta no tiene que exceder de 40 cm.
Esisten escaleras con diseño permanente, usualmente de concreto y otras con diseño no permanente o transportables, hechas de metal o madera.
Pendiente de una escalera:
Poseen con una pendiente comprendida entre 15 y 60º, en el que se ha practicado un dentado para apoyar el pié. Por debajo de esta inclinación están las rampas y por encima, los escalones.
Horario: 5:00 - 7:00
Se siguió dedicando tiempo a las exposiciones finales de los equipos faltantes.
EXPOSICIÓN SOBRE EL TEMA:
" CARPINTERÍA"
Definición de Concepto:
-Carpintería es el nombre del oficio y del taller o lugar donde se trabaja la madera y sus derivados.
La industria de la carpintería produce muebles y materiales
de construcción diversos, desde suelos de contrachapado hasta
tejamaniles. En este artículo se analizan las principales fases
de transformación de la madera para fabricar productos de este
material, que son: el labrado a máquina de la madera o de
paneles manufacturados, el montaje de las piezas mecanizadas y el acabado superficial (p. ej., pintura, tinte, lacado,
chapado, etc.).
Se nos explicó que existe gran variedad de maderas y cada una es apropiada para algún tipo de acabado o mueble.
ALGUNOS EJEMPLOS DE MADERAS SON:
.pino
-roble
-cerezo
-caoba
-ébano
-balsa
-oyamel
-cedro
entre muchas mas (etc...)
Todas las maderas se dividen en 3:
- BLANDA
- DURA
- MEDIANA
Según su dureza se emplearan para cierto objetivo
La carpinteria es realmente esencial en la arquitectura para el desarrollo de acabados en un proyecto de algun inmueble.
claros ejemplos en los:
-CROQUI DE MOSAICO,
-PLANO DE CARPINTERIA (incluido entre los planos de un proyecto)
-LA REPRESENTACIÓN DEL USO DE ESTE MATERIAL EN ACABADOS Y DETALLES DE CONSTRUCCIÓN COMO MUROS, VENTANAS, PUERTAS, TECHOS , ENTRE OTROS.
-----------------------------------------------------------------------------------------------------------------------------------
EXPOSICIÓN:
TEMA: "ESCALERAS"
Las escaleras son mas que fundamentales para un proyecto ejecutivo, estas son definidas como el medio por el cual se nos permite ingresar de un nivel a otro en un inmueble.
Dicho medio esta formado por una estructura con forma pendiente y apta para subir y bajar sin dificultad.
PARTES DE UNA ESCALERA:
Si un segmento de escalones sobrepasa de 12 escalones sin descanso, deja de ser considerado como escalera y se llamará ESCALINATA.
El voladizo no es una parte fundamental en una escalera, por lo que el diseño de alguna de estas puede no integrarlos.
La huella debe tener una longitud no menor de 60 cms.
El descanso como tal cumple la función de brindar descanzo
a las rodillas por los escalones subidos anteriormente.
Si la escalera contiene contrahuella, esta no tiene que exceder de 40 cm.
Esisten escaleras con diseño permanente, usualmente de concreto y otras con diseño no permanente o transportables, hechas de metal o madera.
Pendiente de una escalera:
Poseen con una pendiente comprendida entre 15 y 60º, en el que se ha practicado un dentado para apoyar el pié. Por debajo de esta inclinación están las rampas y por encima, los escalones.
ALGUNOS TIPOS DE ESCALERAS:
Escalera Imperial:
A mi en lo personal me gusta mucho
el diseño, ya que brinda un aspecto
bastante elegante al inmueble.
Escalera de Caracol
Como lo dice su nombre,
brinda un aspecto de caracol
en vista desde planta.
Representación de escaleras en plano:
Bitácora No. 23 (20-Septiembre-2011) López Olvera Tadeo Antonio. 5IV05
No. de máquina: 15
Horario: 3.00 - 4.00 pm
Exposición
En esta sesión se dio cabida a la exposición de nuestro equipo, con el tema de:
"DETALLES EN LA INDUSTRIA DE LA CONSTRUCCIÓN"
Los detalles constructivos son una parte fundamental de la arquitectura, al igual que su forma exterior y su distribución interior. Tanto si son tan sutiles como para hacerse invisibles o si presentan una complejidad extraordinaria, los detalles determinan la calidad y el carácter de un edificio.
MEDICIONES DE VOLTAJE
El reglamento electrotécnico de baja tensión (REBT) establece que las tensiones nominales usualmente utilizadas en las distribuciones de corriente alterna serán de:
a) 230 V entre fases para redes trifásicas de tres conductores.
b) 230 V entre fase y neutro, y 400 V entre fases, para las redes trifásicas de 4 conductores.
También indica que la frecuencia empleada en la red será de 50 Hz.
De manera que sólo queda por determinar la corriente que necesitará y como debe distribuirse en el interior de cada vivienda.
Horario: 3.00 - 4.00 pm
Exposición
En esta sesión se dio cabida a la exposición de nuestro equipo, con el tema de:
"DETALLES EN LA INDUSTRIA DE LA CONSTRUCCIÓN"
Los detalles constructivos son una parte fundamental de la arquitectura, al igual que su forma exterior y su distribución interior. Tanto si son tan sutiles como para hacerse invisibles o si presentan una complejidad extraordinaria, los detalles determinan la calidad y el carácter de un edificio.
El diseño de unos buenos detalles requiere la aplicación del máximo cuidado y atención a los encuentros entre materiales, entre diferentes elementos de un edificio y en los cambios de dirección de un material. Por medio de los detalles, los múltiples componentes que constituyen un inmueble se unifican para formar un todo: juntas, uniones, encuentros, aberturas y superficies se transforman en un proyecto ejecutivo a través de la combinación de la tecnología y la correcta empleacion de materiales.
Los planos de detalles son aquellos que ciertamente nos complementan todo el proyecto ejecutivo de un inmueble,
Ejemplos de detalles:
Algunos de los ejemplos mas comunes de los detalles, se encuentran en la instalación de una puerta:
¿Qué son planos de instalaciones eléctricas?
Son aquellos planos en los que se muestran los distintos tipos de instalaciones electrónicas, tales como:
-Toma corriente.
Los planos de detalles son aquellos que ciertamente nos complementan todo el proyecto ejecutivo de un inmueble,
Ejemplos de detalles:
Algunos de los ejemplos mas comunes de los detalles, se encuentran en la instalación de una puerta:
Otro ejemplo es el de una ventana:
Loa planos de detalles, nos proporcionan toda la información necesaria para instalar o dar acabados a nuestro proyecto, son esenciales para finalizarlos correctamente.
El profesor nos dio su punto de vista y dio correcciones sobre nuestra exposición.
------------------------------------------------------------------------------------------------------------
EXPOSICIÓN
Paso un equipo a exponer el tema de :
"PLANOS DE INSTALACIÓN ELÉCTRICA"
¿Qué son planos de instalaciones eléctricas?
Son aquellos planos en los que se muestran los distintos tipos de instalaciones electrónicas, tales como:
-Toma corriente.
-Interruptores.
-Timbres.
-Antenas de T.V. y radio.
-Tableros.
-Conductores.
-Zumbadores.
-Tomas de teléfono.
-Salidas para lamparas.
-ETC...
Todos estos elementos se identifican por símbolos de los distintos artefactos y conductores, los cuales se interpretan de la siguiente forma:
-Timbres.
-Antenas de T.V. y radio.
-Tableros.
-Conductores.
-Zumbadores.
-Tomas de teléfono.
-Salidas para lamparas.
-ETC...
Todos estos elementos se identifican por símbolos de los distintos artefactos y conductores, los cuales se interpretan de la siguiente forma:
MEDICIONES DE VOLTAJE
El reglamento electrotécnico de baja tensión (REBT) establece que las tensiones nominales usualmente utilizadas en las distribuciones de corriente alterna serán de:
a) 230 V entre fases para redes trifásicas de tres conductores.
b) 230 V entre fase y neutro, y 400 V entre fases, para las redes trifásicas de 4 conductores.
También indica que la frecuencia empleada en la red será de 50 Hz.
De manera que sólo queda por determinar la corriente que necesitará y como debe distribuirse en el interior de cada vivienda.
El equipo nos platico sobre todo el proceso para realizar dichos planos,
Para cada proyecto en ocasiones se requiere mas de un plano, dependiendo del inmueble, se deben tomar en cuenta las regulaciones de voltaje, las cuales estan establecidas por normas gubernamentales.
Bitácora No. 22 (19-Septiembre-2011) López Olvera Tadeo Antonio. 5IV05
No. de Máquina: 15
Se estuvieron insertando muebles, alguna simbología como los NPT, siendo conscisos, se siguió avanzando al proyecto en general.
Horario: 7:00 - 10.00
Continuamos trabajando en nuestro proyecto de plantas arquitectónica en Autocad, se han estado revisando con detalle para la búsqueda de posibles errores.
RECORDANDO LOS SIGUIENTES PUNTOS:
- Nuestros planos deben estar siendo dibujados en mm.
-Acotaciones deben estar expresadas en metros y con centésimos despues del punto decimal
Ej. Una linea que mide 2000mm = 2.00m
y la distancia entre acotaciones totales , y subtotales, respecto al plano y entre si, máximo es de 500 unidades
- La nomenclatura correcta es:
-En nuestro caso:
PE05_TLJN-04
El profesor revisó el Pie de plano que habiamos realizado, para aplicarlo ahora en nuestro programa de apoyo AUTOCAD.
martes, 11 de octubre de 2011
Bitácora No. 21 (15-Septiembre-2011) López Olvera Tadeo Antonio. 5IV05
NO. DE MÁQUINA: 15
HORARIO: 5:00 PM - 7:00 PM
HORARIO: 5:00 PM - 7:00 PM
No se atendió clase por motivos de DÍA FESTIVO
ESTADOS UNIDOS MEXICANOS
15 .SEPTIEMBRE.2011
15 .SEPTIEMBRE.2011
viernes, 23 de septiembre de 2011
Bitácora No. 20 (13-Septiembre-2011) López Olvera Tadeo Antonio. 5IV05
No. de Máquina: 15
Horario: 3.00 pm - 4.00 pm
"Lamentablemente no se me permitió la entrada al salón de clases por retardo"
"En lo personal, me pareció correcto, ya que seria una falta de respeto a mis compañeros que fueron puntuales"
Aun así me di a la tarea de investigar en otros blog´s las actividades que se realizaron en dicha sesión.
EXPOSICIÓN TEMA: "ACABADOS"
El equipo expuso sobre los tipos de materiales , se menciono uno de los materiales más comunes en acabados es el marmol.
PESO DE MÁRMOL
Placa de marmol de 1.65mt x0.50cm por 2.5 cms de espesor peso: 59.17 kg
Su presentación contaba con una gran cantidad de imágenes que mostraban mas información sobre su tema.
Se explico como se realiza la colocación de pisos y acabados en diferentes materiales, los cuales serán ejecutados en los ambientes señalados, con las dimensiones y detalles mostrados en los planos, de conformidad con las instrucciones del Interventor y acogiéndose en los casos que se indique, a las recomendaciones del fabricante y a las especificaciones aquí consignadas.
Se ejecutarán sobre el entresuelo de piedra o base de concreto, según el caso, con los materiales y detalles señalados en los planos para cada obra y además de lo establecido en ellos para cada caso.
DEFINICIÓN GENERAL DEL CONCEPTO:
Se refiere a las terminaciones de Columnas, Paredes, Pisos, Ventanas, y a los hambientes que componen un inmueble
Existen varios tipos son liso,apalillado,semi rustico, rustico, tiroleado, tiroleado aplanado, y se usan por lo
regular lo rustico en el exterior lo liso en el interior asi como el tirol aplanado y apalillado, Todo
dependiendo del proyecto ejecutivo a realizar
Horario: 3.00 pm - 4.00 pm
"Lamentablemente no se me permitió la entrada al salón de clases por retardo"
"En lo personal, me pareció correcto, ya que seria una falta de respeto a mis compañeros que fueron puntuales"
Aun así me di a la tarea de investigar en otros blog´s las actividades que se realizaron en dicha sesión.
EXPOSICIÓN TEMA: "ACABADOS"
El equipo expuso sobre los tipos de materiales , se menciono uno de los materiales más comunes en acabados es el marmol.
PESO DE MÁRMOL
Placa de marmol de 1.65mt x0.50cm por 2.5 cms de espesor peso: 59.17 kg
Su presentación contaba con una gran cantidad de imágenes que mostraban mas información sobre su tema.
Se explico como se realiza la colocación de pisos y acabados en diferentes materiales, los cuales serán ejecutados en los ambientes señalados, con las dimensiones y detalles mostrados en los planos, de conformidad con las instrucciones del Interventor y acogiéndose en los casos que se indique, a las recomendaciones del fabricante y a las especificaciones aquí consignadas.
Se ejecutarán sobre el entresuelo de piedra o base de concreto, según el caso, con los materiales y detalles señalados en los planos para cada obra y además de lo establecido en ellos para cada caso.
DEFINICIÓN GENERAL DEL CONCEPTO:
Se refiere a las terminaciones de Columnas, Paredes, Pisos, Ventanas, y a los hambientes que componen un inmueble
Existen varios tipos son liso,apalillado,semi rustico, rustico, tiroleado, tiroleado aplanado, y se usan por lo
regular lo rustico en el exterior lo liso en el interior asi como el tirol aplanado y apalillado, Todo
dependiendo del proyecto ejecutivo a realizar
Bitácora No. 19 (12-Septiembre-2011) López Olvera Tadeo Antonio. 5IV05
Número de Máquina: 15
Horario: 7.00 pm. - 10.00 pm.
CASI TERMINAMOS NUESTRO PROYECTO...
Para esta sesión, nuestro proyecto Ejecutivo esta realizado casi en su totalidad, el dibujo de muros ejes y boyas esta hecho, se aprovecho el fin de semana para corregir un detalle de medidas que ocasiono que no coincidieran las acotaciones acorde al plano original (detalle ocasionado por no tomar como referencia el centro del muro para dar dimensiones) , al igual que las dimensiones de cotas.
Solo es necesario agregar o insertar los bloques para finalizar el proyecto, agregar nombre a habitaciones y símbolos.
En clases anteriores tuvimos oportunidad de obtener bloques para insertar en nuestros planos de planta baja y planta alta , por lo que no significó un problema iniciar a insertarlos.
Se revisó el pie de plano , y se realizaron correcciones , no tan importantes pero significativos, en mi caso el profesor me indico que algunos datos se resaltan mediante el empleo de fuentes mas grandes , y que algunos otros datos, tienen que ir juntos en una división, en cuanto lo demás estuvo bien mi trabajo.
En esta sesión también el profesor tocó el tema de ploteo, nos explicó que para poder plotear se necesita dar un formato apropiado, el cual se tiene que dibujar en conjunto con un pie de plano con sus especificaciones, esto modificando los layouts.
Horario: 7.00 pm. - 10.00 pm.
CASI TERMINAMOS NUESTRO PROYECTO...
Para esta sesión, nuestro proyecto Ejecutivo esta realizado casi en su totalidad, el dibujo de muros ejes y boyas esta hecho, se aprovecho el fin de semana para corregir un detalle de medidas que ocasiono que no coincidieran las acotaciones acorde al plano original (detalle ocasionado por no tomar como referencia el centro del muro para dar dimensiones) , al igual que las dimensiones de cotas.
Solo es necesario agregar o insertar los bloques para finalizar el proyecto, agregar nombre a habitaciones y símbolos.
En clases anteriores tuvimos oportunidad de obtener bloques para insertar en nuestros planos de planta baja y planta alta , por lo que no significó un problema iniciar a insertarlos.
Se revisó el pie de plano , y se realizaron correcciones , no tan importantes pero significativos, en mi caso el profesor me indico que algunos datos se resaltan mediante el empleo de fuentes mas grandes , y que algunos otros datos, tienen que ir juntos en una división, en cuanto lo demás estuvo bien mi trabajo.
En esta sesión también el profesor tocó el tema de ploteo, nos explicó que para poder plotear se necesita dar un formato apropiado, el cual se tiene que dibujar en conjunto con un pie de plano con sus especificaciones, esto modificando los layouts.
jueves, 22 de septiembre de 2011
Bitácora No. 18 (8-Septiembre-2011) López Olvera Tadeo Antonio. 5IV05
Numero de máquina: 15
horario: 5.00pm - 7.00 pm
Clase destinada a :
-Revisión de pie de plano dejado de tarea.
-Entrega de croquis calificados, realizados para evaluación de 1er parcial.
-Continuamos el avance a proyecto arquitectónico casa-habitación en Autocad.
Observaciones:
La mayoría del grupo faltó en la entrega del pie de plano, por la confusión de las medidas de este y su distribución de espacio.
Mi entrega fue errónea, por lo que me dedique a corregir detalles.
Se me entregaron mis croquis realizados, con anotaciones (observaciones) y ya calificados.
horario: 5.00pm - 7.00 pm
Clase destinada a :
-Revisión de pie de plano dejado de tarea.
-Entrega de croquis calificados, realizados para evaluación de 1er parcial.-Continuamos el avance a proyecto arquitectónico casa-habitación en Autocad.
Observaciones:
La mayoría del grupo faltó en la entrega del pie de plano, por la confusión de las medidas de este y su distribución de espacio.
Mi entrega fue errónea, por lo que me dedique a corregir detalles.
Se me entregaron mis croquis realizados, con anotaciones (observaciones) y ya calificados.
Bitácora No. 17 (06-Agosto-2011) López Olvera Tadeo Antonio. 5IV05
No. de máquina : 15
HORARIO: 3.00pm - 4.00 pm
"NO ASISTÍ A DICHA SESIÓN POR MOTIVO DE RETARDO"
Investigando en otros blog´s obtuve la siguiente información:
El profesor dijo, quien expondría la siguiente clase, y se utilizo el resto de la hora para trabajar en el proyecto arquitectónico de la casa-habitación.
Por coincidencia mi compañero de máquina tampoco llegó a la clase, por lo que el avance fue nulo.
*Agradezco al compañero Juan Eduardo Nolasco Medrano por permitirme hechar un vistazo a su blog para la bitacora de esa sesión.
HORARIO: 3.00pm - 4.00 pm
"NO ASISTÍ A DICHA SESIÓN POR MOTIVO DE RETARDO"
Investigando en otros blog´s obtuve la siguiente información:
El profesor dijo, quien expondría la siguiente clase, y se utilizo el resto de la hora para trabajar en el proyecto arquitectónico de la casa-habitación.
Por coincidencia mi compañero de máquina tampoco llegó a la clase, por lo que el avance fue nulo.
*Agradezco al compañero Juan Eduardo Nolasco Medrano por permitirme hechar un vistazo a su blog para la bitacora de esa sesión.
Bitácora No. 16 (5-Septiembre-2011) López Olvera Tadeo Antonio. 5IV05
Número de Maquina: 15
Horario: 7.00pm - 10.00pm
El profesor nos dispuso de tiempo suficiente para ubicar y descargar de internet bloques de autocad, los cuales se estan empleando para complementar nuestros planos arquitectónicos de nuestro proyecto de casa-habitación.
Iniciamos la búsqueda de los mismos (bloques ) en una pagina recomendado por el profesor , en la cual encontramos gran variedad de bloques útiles para nuestro proyecto, sin embargo, decidimos buscar en demás fuentes y hayamos packs de bastantes bloques, mucho mas elaborados.
30 min. fueron suficientes para encontrar los bloques necesarios para nuestro proyecto.
Después de esto se empleo el resto del tiempo para lograr avance en nuestro proyecto de casa habitación,
s
Horario: 7.00pm - 10.00pm
El profesor nos dispuso de tiempo suficiente para ubicar y descargar de internet bloques de autocad, los cuales se estan empleando para complementar nuestros planos arquitectónicos de nuestro proyecto de casa-habitación.
Iniciamos la búsqueda de los mismos (bloques ) en una pagina recomendado por el profesor , en la cual encontramos gran variedad de bloques útiles para nuestro proyecto, sin embargo, decidimos buscar en demás fuentes y hayamos packs de bastantes bloques, mucho mas elaborados.
30 min. fueron suficientes para encontrar los bloques necesarios para nuestro proyecto.
Después de esto se empleo el resto del tiempo para lograr avance en nuestro proyecto de casa habitación,
s
sábado, 3 de septiembre de 2011
Bitácora No. 15 (1-Septiembre-2011) López Olvera Tadeo Antonio. 5IV05
Exposición no.6
Tema: PIE DE PLANO
Los compañeros que explicaron y desarrollaron dicho tema, se encontraron con una de las problemáticas mas comunes, la búsqueda de información no fue 100% fructífera, ya que en ocasiones dieron información no verídica o incompleta, sin embargo como equipo manejaron perfectamente bien su exposición trataron de tener una buena dicción y manera de dirigirse a la audiencia.
La información correcta sobre el pie de plano la dio el profesor, para disipar dudas:
Tema: PIE DE PLANO
Los compañeros que explicaron y desarrollaron dicho tema, se encontraron con una de las problemáticas mas comunes, la búsqueda de información no fue 100% fructífera, ya que en ocasiones dieron información no verídica o incompleta, sin embargo como equipo manejaron perfectamente bien su exposición trataron de tener una buena dicción y manera de dirigirse a la audiencia.
La información correcta sobre el pie de plano la dio el profesor, para disipar dudas:
El formato para un proyecto ejecutivo es de máximo 20cm. de la parte externa, por 4 de alto , o ancho sea el caso de ser horizontal o vertical
Este mismo puede ser horizontal o vertical.
Debe de contener 5 calles colindantes y la distancia mas próxima a las esquina.
Un pie de plano para un proyecto arquitectónico contiene los siguientes datos:
*Norte
*Notas
*Ubicación de la empresa
*Nombre del proyecto
*Proyectó (¿quien proyecto?)
*¿Quien reviso?
*¿Quien dio el visto bueno?
*Nombre del dibujante
*Fecha
*Fecha de inicio
*Fecha de termino
*Fecha de realización
*Nombre del propietario
*Ubicación de nuestro proyecto
*Escala
*Escala gráfica
*Acotaciones
*Tipo de plano (arquitectónico, hidráulico, sanitario, etc.)
*Número de plano
Bitácora No. 13 (29-Agosto-2011) López Olvera Tadeo Antonio. 5IV05
SALÓN:Laboratorio de Autocad 201
Máquina de trabajo: 15
Horas de trabajo:
20:00-21:00 Revisión de croquis de casa, con respecto a reporte fotográfico
21:00-22:00 Mientras tanto se continuo trabajando con el proyecto A , y se aprovecho tiempo para concluir el croquis de S-2
Bitácora No. 12 (25-Agosto-2011) López Olvera Tadeo Antonio. 5IV05
Exposición no. 4
Tema: INSTALACIÓN ELÉCTRICA
Concepto:
Las instalaciones eléctricas son el medio mediante el cual los hogares y las industrias se abastecen de energía eléctrica para el funcionamiento de los aparatos domésticos o industriales respectivamente, que necesiten de ella.
Tipos de Instalaciones eléctricas:
Tema: INSTALACIÓN ELÉCTRICA
Concepto:
Las instalaciones eléctricas son el medio mediante el cual los hogares y las industrias se abastecen de energía eléctrica para el funcionamiento de los aparatos domésticos o industriales respectivamente, que necesiten de ella.
Tipos de Instalaciones eléctricas:
Las instalaciones eléctricas pueden ser abiertas (conductores visibles), aparentes (en ductos o tubos), ocultas, (dentro de paneles o falsos plafones), o ahogadas (en muros, techos o pisos) .
Algo que también es de sumo interés es saber un poco
sobre las "normas de instalaciones eléctricas" que hay en
nuestro país ( México).
-----------------------------------------------------------------------------------------------------------------------------------
Exposición no. 5
Tema: INSTALACIÓN HIDRÁULICA
Se menciono el concepto de una instalación hidráulica,
y sobre todo la importancia, de un bien pensado proyecto para su instalación mencionando la importancia de la distribución de tuberías, y sobre todo, los materiales a utilizar en esta instalación.
miércoles, 31 de agosto de 2011
Bitácora No. 11 (23-Agosto-2011) López Olvera Tadeo Antonio. 5IV05
Exposición 3
Tema: "El proyecto arquitectónico"
Un Proyecto arquitectónico es el conjunto de planos, dibujos, esquemas y textos explicativos utilizados para plasmar (en papel, digitalmente, en maqueta o por otros medios de representación) el diseño de una edificación, antes de ser construida.
Para la realización del proyecto de un inmueble se requieren de numerosos factores que resumidos finalmente son dos tipos de documentación escrita y grafica.
LA DOCUMENTACIÓN ESCRITA
Son todos los tramites y documentos requeridos por el organismo encargado de la planeación de su localidad (ayuntamiento) que por general son: escrituras del predio, comprobantes de pago de catastro del año en curso, pago del permiso para construcción, planos firmados por la firma de arquitectos de la localidad, pago del seguro, etc.
LA DOCUMENTACIÓN GRÁFICA
Es decir los planos los cuales son indispensables para llevar acabo la construcción de un edificio, que tenga una buena distribuccion y excelente funcionalidad, debemos señalar una diferencia existente en los proyectos, determinada por los distintos objetivos que deben cumplir, uno es el proyecto básico y el otro es el proyecto de ejecución.
EL PROYECTO BÁSICO
La misión de este es informar a los organismos competentes de la administración que deben entender acerca de la concesión de la licencia de obras, en este proyecto solo se deben respetar las normas establecidas por el organismo competente de la localidad
EL PROYECTO DE EJECUCIÓN
la misión de este es poder llevar acabo en su integridad la construcción del edificio, casa o inmueble.
Acontinuacion pasomos a enumerar los planos que deben figurar en un proyecto.
1) Plano de situación y emplazamiento
2) Plano de cimientos y saneamiento
3) Plano de cubierta o de conjunto
4) Planos de de planta (distribución)
5) Planos de planta (instalaciones)
6) Planos de planta (estructurales)
7) Planos de alzados o fachadas
8) Planos de secciones o cortes
9) Planos de detalles
10) Planos de carpintería
11) Planos complementarios
Los Diez primeros tipos de planos enumerados componen el proyecto de ejecución, mientras que el proyecto básico está compuesto solamente por los planos nº 1, 3, 4, 7, 8, por lo general pero en cada localidad los organismos competentes solicitan los que ellos necesitan. El plano señalado con el nº 11 tiene carácter opcional.
Tema: "El proyecto arquitectónico"
Un Proyecto arquitectónico es el conjunto de planos, dibujos, esquemas y textos explicativos utilizados para plasmar (en papel, digitalmente, en maqueta o por otros medios de representación) el diseño de una edificación, antes de ser construida.
Para la realización del proyecto de un inmueble se requieren de numerosos factores que resumidos finalmente son dos tipos de documentación escrita y grafica.
LA DOCUMENTACIÓN ESCRITA
Son todos los tramites y documentos requeridos por el organismo encargado de la planeación de su localidad (ayuntamiento) que por general son: escrituras del predio, comprobantes de pago de catastro del año en curso, pago del permiso para construcción, planos firmados por la firma de arquitectos de la localidad, pago del seguro, etc.
LA DOCUMENTACIÓN GRÁFICA
Es decir los planos los cuales son indispensables para llevar acabo la construcción de un edificio, que tenga una buena distribuccion y excelente funcionalidad, debemos señalar una diferencia existente en los proyectos, determinada por los distintos objetivos que deben cumplir, uno es el proyecto básico y el otro es el proyecto de ejecución.
EL PROYECTO BÁSICO
La misión de este es informar a los organismos competentes de la administración que deben entender acerca de la concesión de la licencia de obras, en este proyecto solo se deben respetar las normas establecidas por el organismo competente de la localidad
EL PROYECTO DE EJECUCIÓN
la misión de este es poder llevar acabo en su integridad la construcción del edificio, casa o inmueble.
Acontinuacion pasomos a enumerar los planos que deben figurar en un proyecto.
1) Plano de situación y emplazamiento
2) Plano de cimientos y saneamiento
3) Plano de cubierta o de conjunto
4) Planos de de planta (distribución)
5) Planos de planta (instalaciones)
6) Planos de planta (estructurales)
7) Planos de alzados o fachadas
8) Planos de secciones o cortes
9) Planos de detalles
10) Planos de carpintería
11) Planos complementarios
Los Diez primeros tipos de planos enumerados componen el proyecto de ejecución, mientras que el proyecto básico está compuesto solamente por los planos nº 1, 3, 4, 7, 8, por lo general pero en cada localidad los organismos competentes solicitan los que ellos necesitan. El plano señalado con el nº 11 tiene carácter opcional.
Suscribirse a:
Comentarios (Atom)










